Mijas Golf

Te koop Residential Plot Costa Del Sol Mijas Golf € 210.000,-

Ref.no: RSOR5253472
Price: € 210.000,-

1-7980e48d732b6fc85c14b43b94d2aa54.jpg

Te koop Residential Plot Costa Del Sol Mijas Golf € 210.000,-

Poolyes
Gardenyes
Parkingno
Instelling: Dicht bij golf, verstedelijking
Orientatie: Oost, Zuid-West
Zwembad: privé
Uitzicht: zee, bergen, land, panoramisch
Kenmerken: privéterras
Ref.no: RSOR5253472
Price: € 210.000,-

Plus d'information ›››
Te koop Residential Plot Costa Del Sol Mijas Golf € 210.000,-

Construisez dès maintenant ! Terrain avec permis de construire et ICIO payé à Loma del Flamenco (Mijas Golf).

Magnifique terrain dans le prestigieux lotissement Loma del Flamenco (Mijas Golf), à seulement 5 minutes d'El Esparragal. Le lotissement bénéficie de routes, de ronds-points et de tous les services nécessaires.

Atout majeur : oubliez les tracas et l’incertitude liés aux permis. Ce terrain est vendu avec le permis de construire municipal déjà accordé (taxe ICIO acquittée – 5 000 €) et un plan de base approuvé.

L'acheteur peut commencer la construction immédiatement !

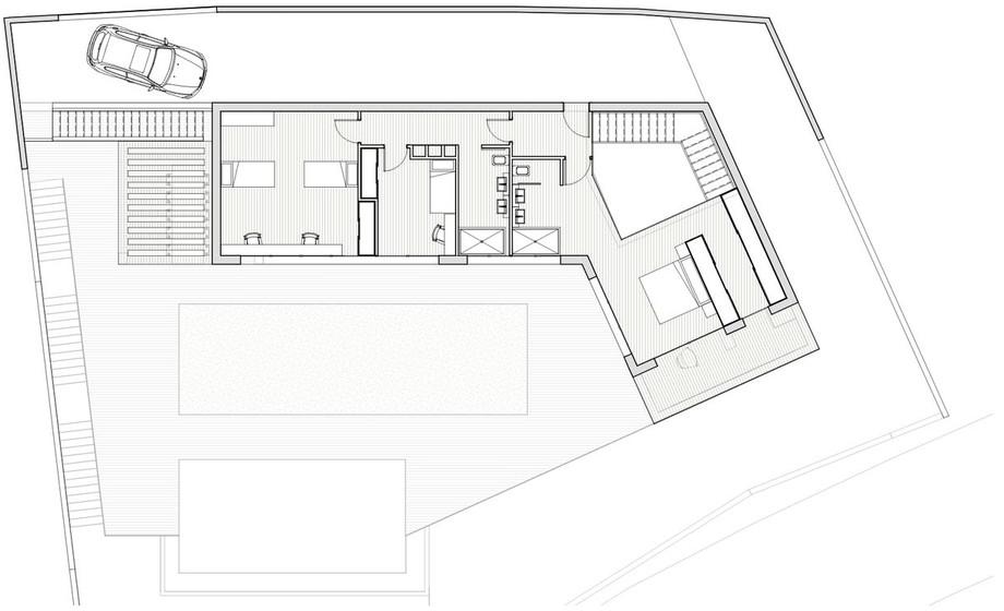
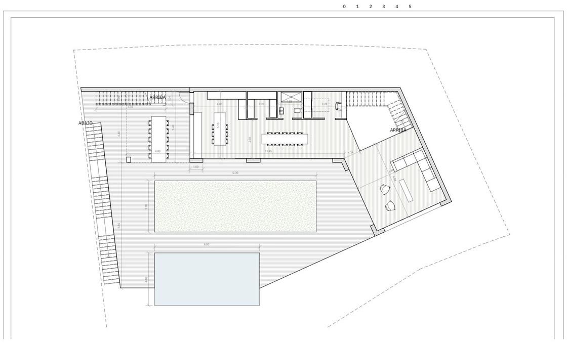
DÉTAILS DU PROJET APPROUVÉ (Maison unifamiliale) :
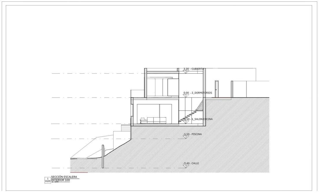
La maison projetée est moderne et fonctionnelle, avec deux niveaux agencés autour d'un patio latéral qui assure éclairage et ventilation.

Vues imprenables : La maison et la piscine approuvée sont conçues pour profiter des vues imprenables sur les imposantes montagnes de Mijas (Sierras de Mijas) et des vues spectaculaires sur la mer depuis l'étage supérieur.

Mise en page:

Rez-de-chaussée/Niveau d'accès (Espace de vie) : Salon, cuisine/salle à manger, toilettes, patio intérieur et bureau.

Niveau supérieur (espace nuit) : Chambre principale avec salle de bains attenante et dressing, plus deux chambres secondaires et une salle de bains.

Avantages supplémentaires inclus :
PISCINE APPROUVÉE dans le projet (prête à être réalisée).

Projet de base approuvé (possibilité d'ajustements avec l'architecte).

À jour de toutes les charges urbaines (certificat de non-dette disponible).

Idéal pour : Les particuliers qui souhaitent construire leur maison sans les délais bureaucratiques ou les petits promoteurs qui ont besoin de commencer la construction en urgence.

Documents disponibles pour l'investisseur/acheteur : Note simple (Nota Simple), rapport d'évaluation, plans et certificat de licence.

Il est temps de commencer à construire, pas d'attendre !

Alternatives

1-7980e48d732b6fc85c14b43b94d2aa54.jpg

Te koop Residential Plot Costa Del Sol Manilva € 229.900,-

Price € 229.900,-
Plus d'information
1-7980e48d732b6fc85c14b43b94d2aa54.jpg

Te koop Residential Plot Costa Del Sol Fuengirola € 216.000,-

Price € 216.000,-
Plus d'information
1-7980e48d732b6fc85c14b43b94d2aa54.jpg

Te koop Residential Plot Costa Del Sol Mijas Golf € 195.000,-

Price € 195.000,-
Plus d'information
1-7980e48d732b6fc85c14b43b94d2aa54.jpg

Te koop Residential Plot Costa Del Sol Estepona € 185.000,-

Price € 185.000,-
Plus d'information
Disclaimer | Links
Casadelmar %lng_cookie_notice% %lng_close%
x