Nerja

Te koop Gelijkvloers appartement Costa Del Sol Nerja € 275.000,-

Ref.no: RSOR5130907
Price: € 275.000,-

1-7980e48d732b6fc85c14b43b94d2aa54.jpg

Te koop Gelijkvloers appartement Costa Del Sol Nerja € 275.000,-

Bedrooms5
Salles de bains1
Superficie du terrain123m²
Poolno
Gardenno
Parkingno
Built year1980
Setting: Town, Close To Golf, Close To Shops, Close To Sea, Close To Town, Close To Skiing
Condition: Good
Views: Street
Features: Storage Room
Furniture: Not Furnished
Kitchen: Not Fitted
Parking: Street
Category: Resale
Ref.no: RSOR5130907
Price: € 275.000,-

Plus d'information ›››
Te koop Gelijkvloers appartement Costa Del Sol Nerja € 275.000,-

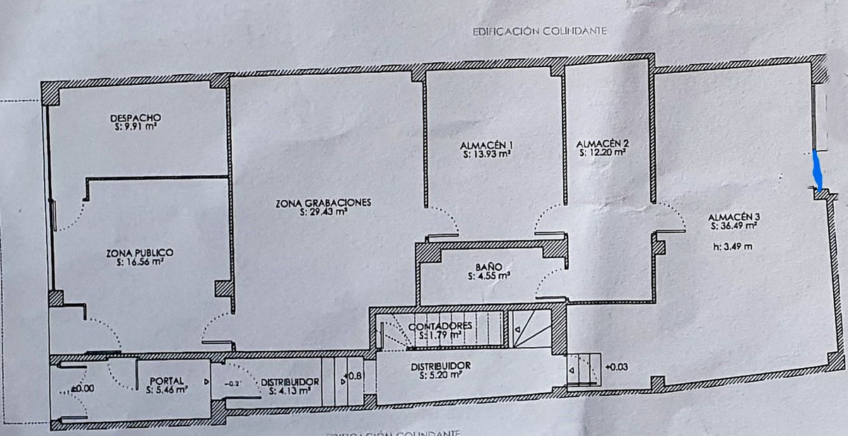
Centrally located premises in Nerja with large area, possibility of converting into an apartment.

The premises have two entrances and large open areas, which gives many possibilities.
Five rooms and a furnished entrance, as well as a toilet. Five minutes walk to Balcon de Europa and Playa Calahonda.

Contact us for a personal visit.

Alternatives

BOHACP1423_4747_V1_185D.jpg

Te koop Appartement Costa Del Sol Mijas € 299.000,-

Price € 299.000,-
Plus d'information
BOHACP1419_4714_V1_B125.jpg

Te koop Appartement Costa Del Sol Riviera Del Sol € 295.000,-

Price € 295.000,-
Plus d'information
BOHAAP4897_27218_V1_3114.jpg

Te koop Appartement Costa Del Sol Mijas Costa € 278.000,-

Price € 278.000,-
Plus d'information
BOHACP1433_4841_V1_B224.jpg

Te koop Appartement Costa Del Sol Mijas € 250.000,-

Price € 250.000,-
Plus d'information
Disclaimer | Links
Casadelmar %lng_cookie_notice% %lng_close%
x