Cerros Del Aguila

Te koop Vrijstaande Villa Costa Del Sol Cerros Del Aguila € 720.000,-

Ref.no: RSOR5187919
Price: € 720.000,-

1-7980e48d732b6fc85c14b43b94d2aa54.jpg

Te koop Vrijstaande Villa Costa Del Sol Cerros Del Aguila € 720.000,-

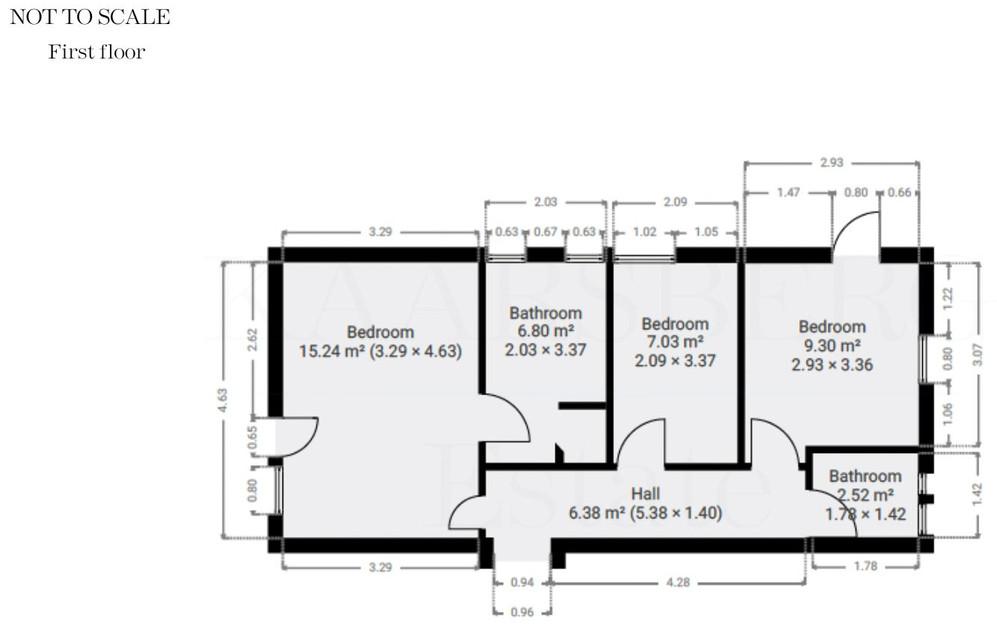
Bedrooms3
Salles de bains2
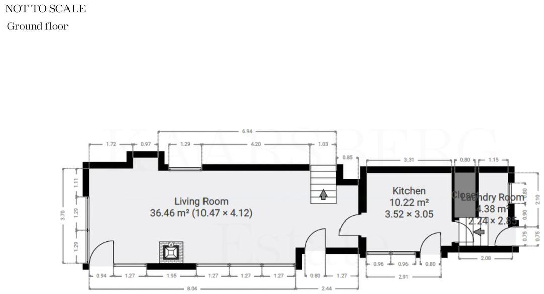
Living area148m²
Poolyes
Gardenyes
Parkingyes
Built year1979
Setting: Suburban, Close To Golf, Close To Town, Urbanisation
Orientation: South
Condition: Good, Fair, Renovation Required
Pool: Private
Features: Covered Terrace, Private Terrace, Basement
Kitchen: Fully Fitted
Garden: Private
Parking: Underground, Garage, More Than One, Private
Category: Resale
Ref.no: RSOR5187919
Price: € 720.000,-

Plus d'information ›››
Te koop Vrijstaande Villa Costa Del Sol Cerros Del Aguila € 720.000,-

Excellent Investment Opportunity – Detached Villa in Cerros del Aguila

This charming 3-bedroom, 2-bathroom villa in Cerros del Aguila offers great potential for both private buyers and investors. Situated in a peaceful residential area close to golf, town, and amenities.
The property features 148 m² of living space plus a 47 m² south-facing terrace with sun all day. It includes a fully fitted kitchen, bright living areas, a private pool, and a basement with multiple possibilities.
This is an older villa that requires some TLC - ideal for modernisation or renovation, making it a smart investment with room for added value.

Additional highlights include a private garden, garage and underground parking for several cars, and its location within a well-established urbanisation just minutes from Fuengirola and Mijas.

Detached Villa, Cerros del Aguila, Costa del Sol.
3 Bedrooms, 2 Bathrooms, Built 148 m², Terrace 47 m².

Setting : Suburban, Close To Golf, Close To Town, Urbanisation.
Orientation : South.
Condition : Renovation Required.
Pool : Private.
Features : Covered Terrace, Private Terrace, Basement.
Kitchen : Fully Fitted.
Garden : Private.
Parking: Underground, Garage, More Than One, Private.
Category : Resale.

Alternatives

1-7980e48d732b6fc85c14b43b94d2aa54.jpg

Te koop Vrijstaande Villa Costa Del Sol El Padron € 795.000,-

Price € 795.000,-
Plus d'information
1-7980e48d732b6fc85c14b43b94d2aa54.jpg

Te koop Vrijstaande Villa Costa Del Sol Nueva Andalucía € 750.000,-

Price € 750.000,-
Plus d'information
1-7980e48d732b6fc85c14b43b94d2aa54.jpg

Te koop Vrijstaande Villa Costa Del Sol San Pedro De Alcántara € 630.000,-

Price € 630.000,-
Plus d'information
1-7980e48d732b6fc85c14b43b94d2aa54.jpg

Te koop Vrijstaande Villa Costa Del Sol Canillas De Albaida € 650.000,-

Price € 650.000,-
Plus d'information
Disclaimer | Links
Casadelmar %lng_cookie_notice% %lng_close%
x