The Golden Mile
Te koop Half vrijstaand huis Costa Del Sol The Golden Mile € 2.395.000,-
Ref.no: RSOR5126059
Price: € 2.395.000,-

Te koop Half vrijstaand huis Costa Del Sol The Golden Mile € 2.395.000,-
Bedrooms | 4 |
Salles de bains | 4 |
Superficie du terrain | 280m² |
Living area | m² |
Pool | no |
Garden | no |
Parking | no |
Cooling | %lng_% |
Storage | %lng_% |
Elevator | %lng_% |
Built year | 2006 |
Floor |
Price: € 2.395.000,-
Plus d'information ›››
Te koop Half vrijstaand huis Costa Del Sol The Golden Mile € 2.395.000,-
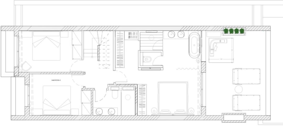
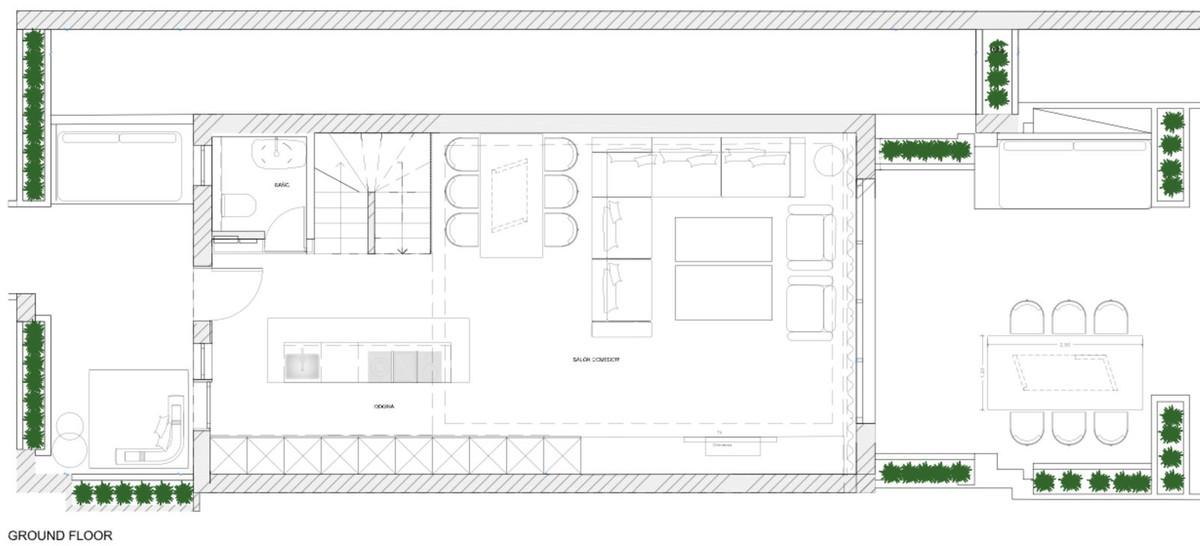
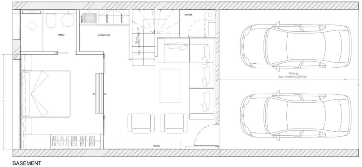
Exclusive townhouse in the Golden Mile, located in the prestigious Monte Marbella Club, in Lomas de Puente Romano.
Fully renovated with high-quality materials and elegant design, this property features 4 spacious bedrooms, 3 bathrooms, and a guest toilet.
Large windows provide abundant natural light, a 70 m² terrace offers outdoor space, and the home is set in a peaceful environment just minutes from all amenities.
Built in 2005 and renovated on 2025 it boasts 283 m² of living space and private parking for two cars. Secure gated community. Community fee: €450/month.