Mijas Golf

Te koop Herenhuis Costa Del Sol Mijas Golf € 570.000,-

Ref.no: RSOR4955368
Price: € 570.000,-

1-7980e48d732b6fc85c14b43b94d2aa54.jpg

Te koop Herenhuis Costa Del Sol Mijas Golf € 570.000,-

Bedrooms3
Salles de bains2
Superficie du terrain111m²
Poolyes
Gardenyes
Parkingno
Built year1988
Setting: Frontline Golf, Close To Golf, Close To Schools
Orientation: South, South West, West
Condition: Good
Pool: Private
Climate Control: Hot A/C, Fireplace
Views: Sea, Golf
Features: Fitted Wardrobes, Near Transport, Private Terrace
Furniture: Fully Furnished
Kitchen: Fully Fitted
Garden: Private
Parking: Street
Utilities: Electricity
Category: Holiday Homes, Resale
Ref.no: RSOR4955368
Price: € 570.000,-

Plus d'information ›››
Te koop Herenhuis Costa Del Sol Mijas Golf € 570.000,-

Charming townhouse in Aida Mijas golf with private swimming pool and big terrace -Your oasis of calm

Experience the Andalusian charm of this three bedroom townhouse located in the prestigious Puebla Aida complex in the heart of Mijas Golf.
This beautiful home offers a unique blend of luxury, comfort, boasting an eastern orientation and breathtaking panoramic views of the surrounding golf course and majestic mountains.

Description:
When you enter, you are welcomed by an elegant entrance hall, on the ground floor where there are three bedrooms, with fitted wardrobe and two bathrooms one of the bedrooms, is the master bedroom ensuite and has own access to the terrace and pool.
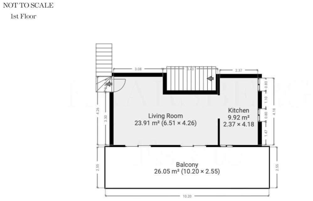
On the 1st floor, you will find the kitchen and the spacious living/dining room, with a cozy fireplace providing a perfect setting, for relaxation and entertainment.
From the living room, you can go out on terrace and enjoy the sea view and the sun all day long.


Property overview
Location:
Puebla Aida Complex, Mijas Golf
Orientation: South-west
Terrace: Sunny terrace with panoramic views

Additional Features:
All windows are double glazing.
Heating in all rooms.
Fitted wardrobe.
Ceiling fan.
Electric fireplace in living/dining room.
Large terrace with swimming pool ideal for outdoor living and dining.
Safety box.
Storage room under staircase.
Air conditioning a/c in all rooms.

Community Facilities:
The Puebla Aida complex stands as an architectural masterpiece that evokes the atmosphere of an ancient Andalusian village with Moorish influences.
Residents have access to 4 swimming pool areas, meticulously manicured gardens, charming walkways, alleys, squares and tranquil fountains, creating an atmosphere of timeless tranquility.

Urbanization distances:
Fuengirola Centre: 10 minutes
Beach: 10 minutes
Málaga Airport: 25 minutes
Marbella Centre: 25 minutes

Don't miss the opportunity to claim your own piece of Andalusian paradise in the heart of Mijas Golf. Your dream home awaits - grab the chance today!

Alternatives

1-7980e48d732b6fc85c14b43b94d2aa54.jpg

Te koop Herenhuis Costa Del Sol Estepona € 520.000,-

Price € 520.000,-
Plus d'information
1-7980e48d732b6fc85c14b43b94d2aa54.jpg

Te koop Herenhuis Costa Del Sol Mijas € 499.000,-

Price € 499.000,-
Plus d'information
1-7980e48d732b6fc85c14b43b94d2aa54.jpg

Te koop Herenhuis Costa Del Sol La Cala De Mijas € 649.000,-

Price € 649.000,-
Plus d'information
1-7980e48d732b6fc85c14b43b94d2aa54.jpg

Te koop Herenhuis Costa Del Sol Estepona € 595.000,-

Price € 595.000,-
Plus d'information
Disclaimer | Links
Casadelmar %lng_cookie_notice% %lng_close%
x