Estepona

Te koop Residential Plot Costa Del Sol Estepona € 245.000,-

Ref.no: RSOR4814752
Price: € 245.000,-

1-7980e48d732b6fc85c14b43b94d2aa54.jpg

Te koop Residential Plot Costa Del Sol Estepona € 245.000,-

Poolno
Gardenyes
Parkingno
Setting: Close To Town
Orientation: South West
Views: Golf, Panoramic
Category: Bargain, Cheap, Distressed, Golf, Holiday Homes, Investment, Luxury, Reduced, Resale, With Planning Permission, Contemporary
Ref.no: RSOR4814752
Price: € 245.000,-

Plus d'information ›››
Te koop Residential Plot Costa Del Sol Estepona € 245.000,-

Discover a truly unique opportunity in the prestigious Estepona Golf area!

We present you an exclusive 575 m² plot, located on the front line of the golf course, where luxury and tranquility merge to offer you an unrivalled setting. This plot has an approved building permit and an architectural project already designed, ready to give life to a spectacular 172 m² buildable villa, plus terraces, cozy porches and a private pool that will make this space a true personal paradise.

Located in one of the most sought-after and promising enclaves on the Costa del Sol, this plot not only offers you an incomparable natural environment, but also guarantees you an investment with high potential for revaluation. Surrounded by green golf courses and with a single neighbor, you will enjoy absolute privacy while delighting in the panoramic views of the golf course from every corner of your future villa. This is a place where nature and exclusivity come together to offer you an exceptional quality of life, without giving up proximity to the best services, beaches and main roads in the area.

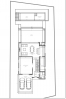
The architectural project approved for this plot has been designed with meticulous attention to every detail, thinking of comfort and energy efficiency. The upper floor is intended for a luxurious 24 m² master bedroom, which includes a dressing room, an elegant en-suite bathroom and access to a private 45 m² terrace, from where you can enjoy stunning views. On the ground floor, two large bedrooms with built-in wardrobes offer you all the necessary space for your family or guests, while the open-concept living room with kitchenette becomes the heart of the house, perfect for meetings and family moments. This level also includes a 45 m² porch, a full bathroom and an outdoor toilet, as well as a private garden and a swimming pool that invite you to relax.

With an approximate construction cost of €500,000, and with all the paperwork already taken care of, you can start building your house without delay. This property is ideal for property developers looking for a ready-to-develop project in a prime location, for families who want to build their home in a peaceful setting, and for investors looking for a property with excellent appreciation potential.

Don't miss this opportunity to acquire a plot of land in one of the most exclusive enclaves in Estepona and start building the house of your dreams without complications!

Alternatives

1-7980e48d732b6fc85c14b43b94d2aa54.jpg

Te koop Residential Plot Costa Del Sol El Rosario € 222.000,-

Price € 222.000,-
Plus d'information
1-7980e48d732b6fc85c14b43b94d2aa54.jpg

Te koop Residential Plot Costa Del Sol Estepona € 270.000,-

Price € 270.000,-
Plus d'information
1-7980e48d732b6fc85c14b43b94d2aa54.jpg

Te koop Residential Plot Costa Del Sol Estepona € 239.000,-

Price € 239.000,-
Plus d'information
1-7980e48d732b6fc85c14b43b94d2aa54.jpg

Te koop Residential Plot Costa Del Sol La Cala Golf € 240.000,-

Price € 240.000,-
Plus d'information
Disclaimer | Links
Casadelmar %lng_cookie_notice% %lng_close%
x